Pick up物件一覧
広島市東区
東区牛田早稲田2丁目 中古マンション
- 2026.03.03
- 東区牛田早稲田2丁目19-45
- 980万円
Date物件概要
- 物件名
- 牛田早稲田グランドハイツ
- 価格
- 980万円
- 所在地
- 東区牛田早稲田2丁目19-45
- 販売戸数
- 1戸
- 総戸数
- 1戸
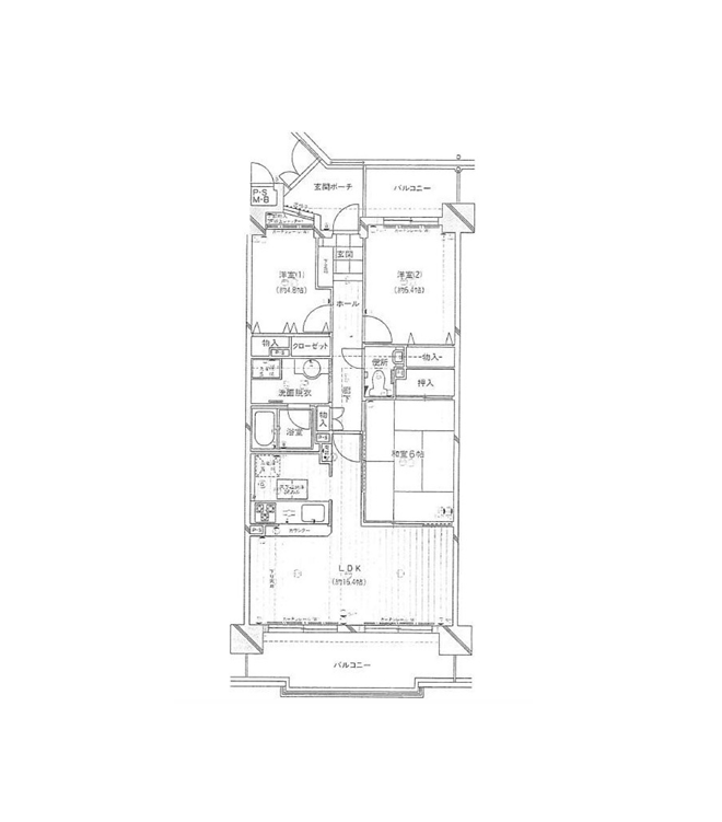
- 間取り
- 3LDK
- 建物面積
- -
- 土地面積
- -
- 専有面積
- 壁芯:74.93㎡(22.66坪)
- ほか私道負担
- -
- 諸費用
- -
- 建ぺい率・容積率
- -
- 構造・工法
- SRC造
- 完成年月
- 平成4年7月
- 入居時期
- 通常
- 土地の権利形態
- 所有権
- 施工
- -
- リフォーム
- -
- 駐車
- 敷地外 11,000円/月
- 地目
- -
- 用途地域
- 第二種中高層専用地域
- 交通
- AL牛田駅徒歩32分 牛田早稲田3丁目バス停徒歩7分
- 道路
- -
- その他概要・特記事項
- 静かな住宅街の眺望良好な高台マンション 駐車場には1戸に1台確約 バルコニーから広島市を望む眺望 LDKは15帖以上、家族みんなでくつろげる開放的な空間 お好きな改装も可能な現状渡し物件 好みのリノベーションや家具新調可能 対面式キッチン 宅配ボックス
Environment周辺環境
学区:早稲田小学校 早稲田中学校
